0561 99 77 80 70

Maximales Potential für Familien und Kapitalanleger

35114 Haina, Einfamilienhaus zum Kauf

Video

Virtueller Rundgang

Kontaktdaten

Mathias Nahrstedt, Adams & Heyder Immobilienmakler GmbH

Objektdaten

  • Objekt-ID
    AH-179
  • Objekttypen
    Einfamilienhaus, Haus
  • Adresse
    35114 Haina
  • Etage
    2
  • Wohnfläche ca.
    135,01 m²
  • Nutzfläche ca.
    57,04 m²
  • Balkon-/Terrassen­fläche ca.
    2,64 m²
  • Grund­stück ca.
    768 m²
  • Zimmer
    7
  • Schlafzimmer
    4
  • Badezimmer
    2
  • Balkone
    1
  • Heizungsart
    Zentralheizung
  • Wesentlicher Energieträger
    Öl
  • Baujahr
    1951
  • Zustand
    teilsaniert
  • Verfügbar ab
    Nach Absprache
  • Käufer­provision
    3,57 % inkl. MwSt.
    3,57 % Käuferprovision inkl. MwSt., verdient und fällig mit Beurkundung des notariellen Kaufvertrages.
  • Kaufpreis
    214.000 EUR

Ausstattung / Merkmale

  • ✓ Balkon
  • ✓ Garten/Gartennutzung
  • ✓ Kamin
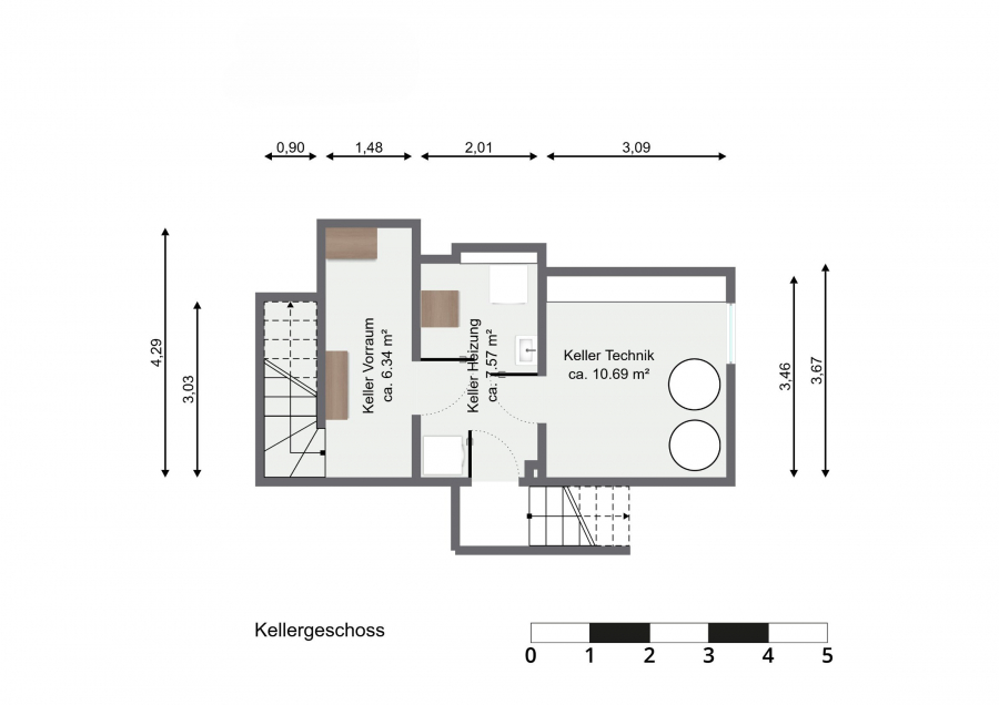
  • ✓ Keller

Energieausweis

  • Energieausweistyp
    Bedarfs­ausweis
  • Ausstellungsdatum
    24.04.2025
  • Gültig bis
    23.04.2035
  • Gebäudeart
    Wohngebäude
  • Baujahr
    1951
  • Primärenergieträger
    Öl
  • Endenergie­bedarf
    392,10 kWh/(m²·a)
  • Energie­effizienz­klasse
    H
0 25 50 75 100 125 150 175 200 225 250+ H G F E D C B A A+ H G F E D C B A A+ Endenergiebedarf 392,10 kWh/(m²·a)

Objekt­beschreibung

Entdecken Sie Ihr Traumhaus in Haina! Dieses charmante Einfamilienhaus bietet mit seinen 7 Zimmern, 4 geräumigen Schlafzimmern und 2 modernen Badezimmern ausreichend Platz für die ganze Familie. Die Wohnfläche von 135,01 m² erstreckt sich über ein großzügiges Grundstück von 768 m², das ideale Rückzugsgebiete im Freien bietet.

Das Haus befindet sich im 2. Obergeschoss und wurde teilsaniert, um einen Mix aus klassischem Charme und modernem Komfort zu bieten. Ein praktischer Keller steht zur Verfügung und bietet zusätzlichen Stauraum. Der einladende Garten lädt zu entspannten Stunden im Freien ein und ist perfekt für Gartenliebhaber und Familien.

Ein besonderes Highlight dieses Hauses ist der Kamin, der an kühlen Abenden für eine gemütliche Atmosphäre sorgt. Die Zentralheizung mit Öl sorgt das ganze Jahr über für ein angenehmes Wohnklima.

Nutzen Sie diese Gelegenheit, um in einem idyllischen Ort wie Haina Ihr neues Zuhause zu finden. Vereinbaren Sie noch heute einen Besichtigungstermin und lassen Sie sich von diesem besonderen Einfamilienhaus verzaubern.

Lage

Diese Immobilie befindet sich in einer attraktiven Lage in Haina, die sowohl Ruhe als auch gute Verkehrsanbindungen bietet. Ein besonderes Plus ist der kurze Fußweg von nur 4 Minuten zur nächsten öffentlichen Verkehrshaltestelle, die eine bequeme und schnelle Fortbewegung ermöglicht.

Der nächste Hauptbahnhof ist lediglich 17 Minuten Fahrzeit entfernt, was Pendlern und Reisenden eine ausgezeichnete Zugänglichkeit zu überregionalen Verbindungen bietet. Darüber hinaus ist der nächste Flughafen in nur 38 Minuten erreichbar, ideal für Geschäftsreisende oder Urlauber.

Die Umgebung von Haina zeichnet sich durch ihre natürliche Schönheit und die Nähe zu grünen Erholungsgebieten aus. Gleichzeitig sind alle notwendigen Annehmlichkeiten wie Einkaufsmöglichkeiten, Schulen und Gesundheitseinrichtungen gut erreichbar. Diese Lage vereint somit die Vorzüge von Stadtnähe und ländlichem Charme.

Flughafen 34,51 km | Fernbahnhof 16,59 km | Bus 300 m 

Direktanfrage

* Pflichtangaben
 SSL-verschlüsselt
Immobiliendaten-Import und Darstellung für WordPress: WP-ImmoMakler