0561 99 77 80 70

4-Zimmer-Whg inkl. beheiztem Windergarten in KfW-40-Effizienzhaus in Kassel-Unterneustadt

34125 Kassel, Etagenwohnung zum Kauf

Kontaktdaten

Stephan Adams, Adams & Heyder Immobilienmakler GmbH

Objektdaten

  • Objekt-ID
    AH-138
  • Objekttypen
    Etagenwohnung, Wohnung
  • Adresse
    34125 Kassel
    Hessen
  • Etage
    1
  • Etagen im Haus
    3
  • Wohnfläche ca.
    85,34 m²
  • Grund­stück ca.
    1.037 m²
  • Zimmer
    4
  • Schlafzimmer
    2
  • Badezimmer
    1
  • Loggien
    1
  • Küche
    Einbauküche
  • Heizungsart
    Fußbodenheizung
  • Wesentlicher Energieträger
    Fernwärme
  • Baujahr
    2019
  • Zustand
    neuwertig
  • Ausstattung
    gehoben
  • Status
    vermietet
  • Tief­garagen­stell­platz
    1 Stellplatz
  • Verfügbar ab
    nach Absprache in ca. 6 Monaten
  • Käufer­provision
    3,57 % inkl. MwSt.
    3,57 % Käuferprovision inkl. MwSt., verdient und fällig mit Beurkundung des notariellen Kaufvertrages.
  • Hausgeld
    285,00 EUR
  • Kaltmiete
    840,00 EUR
  • Kaufpreis
    345.000 EUR

Ausstattung / Merkmale

  • ✓ Abstellraum
  • ✓ Barrierefrei
  • ✓ Dusche
  • ✓ Einbauküche
  • ✓ Fliesenboden
  • ✓ Loggia
  • ✓ Parkettboden
  • ✓ Personenaufzug
  • ✓ Tiefgarage
  • ✓ Wintergarten

Energieausweis

  • Energieausweistyp
    Bedarfs­ausweis
  • Ausstellungsdatum
    01.05.2020
  • Gültig bis
    30.04.2030
  • Gebäudeart
    Wohngebäude
  • Baujahr
    2019
  • Primärenergieträger
    Fernwärme
  • Endenergie­bedarf
    46,40 kWh/(m²·a)
  • Energie­effizienz­klasse
    A
0 25 50 75 100 125 150 175 200 225 250+ H G F E D C B A A+ H G F E D C B A A+ Endenergiebedarf 46,40 kWh/(m²·a)

Objekt­beschreibung

Beschreibung

Diese moderne und energieeffiziente 4-Zimmer-Wohnung befindet sich in einem im Jahr 2019 erbauten Mehrfamilienhaus in der beliebten Unterneustadt von Kassel. Das Gebäude entspricht dem KfW-40-Effizienzstandard und überzeugt durch seine nachhaltige Bauweise, niedrige Energiekosten und hochwertige Ausstattung.
Die Wohnung liegt in einer ruhigen, dennoch zentralen Wohnlage in einem der Trendviertel von Kassel mit optimaler Anbindung an die Innenstadt, den Auepark und die Fulda – ideal für Paare, kleine Familien, Berufstätige oder durch die Barrierefreiheit auch für Senioren, die modernen Wohnkomfort mit urbaner Nähe verbinden möchten.

Ausstattung

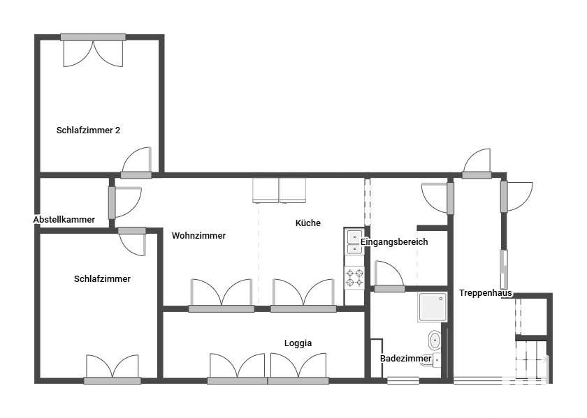
Über den Fahrstuhl kommen Sie direkt barrierefrei vom Eingang oder auch der Tiefgarage bzw. dem überdachten Außenstellplatz (kann beides oder einzeln optional erworben werden) vor der Wohnung an, die sich im 1. OG des Gebäudes befindet.
Zentral in der Wohnung ist das große Wohnzimmer, in der sich der offene Küchenbereich befindet. Von dort gelangen Sie auch in den beheizten Wintergarten, der sonnig liegt und einen tollen Ausblick auf das ehemalige Stadtgefängnis Elwe bietet. Dieser lässt sich über die gesamte Fensterfront nach vorne öffnen.
Neben dem großzügigen Wohn- und Essbereich gibt es 2 weitere separate Zimmer, die sich als Schlaf- & Kinderzimmer oder auch als Büro nutzen lassen, sowie einen Abstellraum.

Durch die bodentiefen, 3-fach verglasten Fenster dieser Räume kommt viel Licht, aber jegliche Geräusche bleiben draußen.
Ein großes Badezimmer mit ebenerdiger Dusche & Fenster rundet diese hochwertige Wohnung ab.

Bitte finden Sie noch einmal die Highlights dieser Wohnung:

  • KfW-40 energieeffizienter Bau aus 2019 --> niedriger Energieverbrauch
  • großzügiger Wohn-Essbereich mit direktem Zugang zum Wintergarten.
  • 2 separate Zimmer mit bodentiefen Fenstern, 3-fach verglast
  • elektrische Außenrollläden
  • hochwertiges Parkett in der gesamten Wohnung
  • geräumiger Abstellraum in der Wohnung
  • Aufzug, barrierefrei
  • Tageslichtbad mit bodentiefer Dusche
  • ruhige Lage in Seitenstraße & sonnige Ausrichtung der meisten Räume
  • Fahrradabstellplatz in der abgeschlossenen Tiefgarage + zusätzlicher Fahrradkeller vorhanden

Sonstiges

Die Wohnung ist derzeit noch vermietet, wobei die Mieter bei Eigenbedarfskündigung innerhalb der Kündigungsfrist ausziehen würden.

Optional kann zur Wohnung auch ein Tiefgaragenstellplatz (20.000€) bzw. ein überdachter Außenstellplatz (15.000€) erworben werden.

Die von uns erhaltenen Objektinformationen stammen vom Verkäufer. Eine Haftung für die Richtigkeit und Vollständigkeit der Angaben übernehmen wir nicht, da es unseren Kunden obliegt, die Angaben auf Richtigkeit zu prüfen.

Haben wir Ihr Interesse an dieser exklusiven 3-Zimmer-Whg geweckt?

Dann freuen wir uns über Ihre zeitnahe Kontaktaufnahme über das Immobilienportal:
Mit separater Mail erhalten Sie den Zugang zum Webexposé. Sobald Sie den Maklervertrag bestätigt haben, erhalten Sie direkt Zugriff auf die genaue Adresse sowie ALLE RELEVANTEN OBJEKTUNTERLAGEN, wie

  • Nebenkostenabrechnung
  • Protokolle der letzten 3 ET-Versammlungen
  • vermaßter Grundriss
  • Teilungserklärung, etc.

Diese Bestätigung ist für Sie kostenfrei und unverbindlich, jedoch notwendig für die Besichtigung. Er regelt lediglich die Provision für den Fall, dass Sie die Wohnung später kaufen.

Gerne vereinbaren wir anschließend einen zeitnahen Besichtigungstermin mit Ihnen.

Ihr Team von Adams & Heyder Immobilienmakler GmbH

Lage

Die Unterneustadt gehört zu den begehrtesten Wohnlagen Kassels. Direkt an der Fulda gelegen, bietet sie eine perfekte Kombination aus urbanem Leben und naturnaher Erholung.
Einkaufsmöglichkeiten, Cafés, Schulen und Kindergärten sind fußläufig erreichbar.

Um die Wohnlage noch weiter zu entwickeln, wird die nahegelege Hafenstraße zu einer Fahrradstraße ausgebaut und es wird im Rahmen eines Städtebauprojekts zeitnah ein Quartiersplatz entstehen; eine absolute Aufwertung der Wohnlage!

Die Innenstadt, die Karlsaue und die Autobahn sind schnell erreichbar. Öffentliche Verkehrsmittel befinden sich in unmittelbarer Nähe.

Direktanfrage

* Pflichtangaben
 SSL-verschlüsselt
Immobiliendaten-Import und Darstellung für WordPress: WP-ImmoMakler