0561 99 77 80 70

2 leerstehende Häuser im Altstadtkern von Fritzlar!

34560 Fritzlar, Zweifamilienhaus zum Kauf

Video

Virtuelle Rundgänge

Kontaktdaten

Stefan Heyder, Adams & Heyder Immobilienmakler GmbH

Objektdaten

  • Objekt-ID
    240051
  • Objekttypen
    Haus, Zweifamilienhaus
  • Adresse
    34560 Fritzlar
    Hessen
  • Wohnfläche ca.
    268 m²
  • Grund­stück ca.
    227 m²
  • Zimmer
    10
  • Badezimmer
    3
  • Küche
    Einbauküche
  • Heizungsart
    Etagenheizung
  • Wesentlicher Energieträger
    Gas
  • Baujahr
    1800
  • Letzte Modernisierung
    1998
  • Zustand
    renovierungsbedürftig
  • Ausstattung
    Standard
  • Erschließung
    vollerschlossen
  • Verfügbar ab
    sofort
  • Käufer­provision
    3,57 % Käuferprovision inkl. Mwst.
    3,57 % Käuferprovision inkl. Mwst., verdient und fällig mit Beurkundung des notariellen Kaufvertrages.
  • Kaufpreis
    240.000 EUR

Ausstattung / Merkmale

  • ✓ Abstellraum
  • ✓ Badewanne
  • ✓ Denkmalgeschützt
  • ✓ Dielenboden
  • ✓ Dusche
  • ✓ Einbauküche
  • ✓ Fliesenboden
  • ✓ Keller
  • ✓ Parkettboden
  • ✓ Tageslichtbad

Energieausweis

  • Energieausweis
    nicht erforderlich

Objekt­beschreibung

Beschreibung

Diese historischen Fachwerkhäuser sind eine seltene Gelegenheit viel Platz im Altstadtkern von Fritzlar zu ergattern.

Das Vorderhaus wurde als Wohn- & Geschäftshaus mit Ladenlokalen genutzt und im Laufe der Zeit als Zweifamilienhaus mit zwei abgeschlossenen Wohnungen umgebaut.

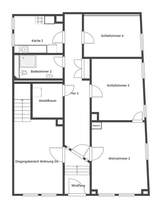
Das Erdgeschoss ist sanierungs- & renovierungsbedürftig und bietet dadurch freie Gestaltungsmöglichkeiten mit 3 Zimmern und ca. 71 m² Wohnfläche. Diese Wohnung ist seit dem 01.06.2025 leerstehend.

Das Obergeschoss mit ca. 110 m² und 4 Zimmern wurde in 1998 aufwendig und liebevoll kernsaniert und bietet zusätzliche Ausbaureserve im Dachgeschoss, wo bereits ein zusätzliches Zimmer mit ca. 14 m² geschaffen wurde.
Zuletzt wurden in 2020 die Dielenböden aufgearbeitet und die Gasetagenheizung ausgetauscht.

Das Objekt ist mit einem Gewölbekeller unterkellert, welcher von der Straße aus begehbar ist.

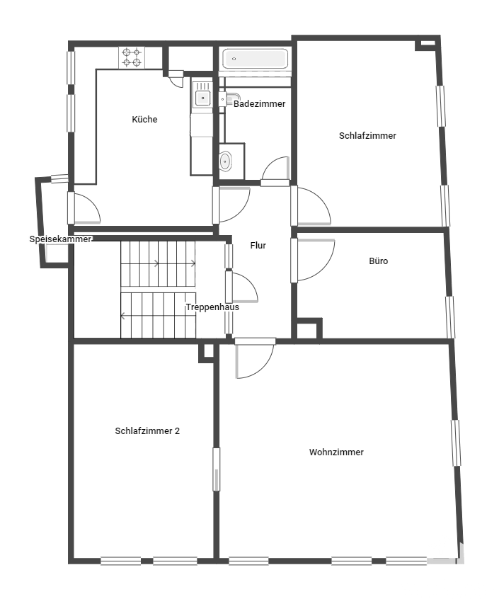
Das direkt angrenzende Einfamilienhaus dahinter bietet mit drei Zimmern 73 m² Wohnfläche, eine Ausbaureserve des kompletten 2. Obergeschosses (ca. 40 m²) und einen kleinen Vorhof.

Es wurde 1990 kernsaniert, der Holzdielenboden wurde aufgearbeitet und das Bad erneuert. Die Gastherme ist in 2024 ausgetauscht worden, so dass kein akuter Sanierungsstau besteht.

Aufgrund der Verkaufsabsicht wurden die Wohnungen nicht neu vermietet, so dass Sie die Immobilie leerstehend übernehmen können.

Sonstiges

Eine besondere Immobilie - Sie sind an näheren Informationen oder einem Besichtigungstermin interessiert?
Dann fordern Sie direkt das ausführliche Exposé über die Kontaktfunktion der Immobilienportale oder unsere Webseite https://www.adams-heyder.de an. Bitte geben Sie dabei eine gültige Telefonnummer an, denn Sie erhalten im nächsten Schritt einen Anruf, ob Sie einen Besichtigungstermin wahrnehmen möchten.

Mit separater Mail erhalten Sie den Zugang zum Webexposé. Sobald Sie den Maklervertrag bestätigt haben ("Jetzt bestätigen" anklicken), erhalten Sie direkt Zugriff auf die genaue Adresse sowie ALLE RELEVANTEN OBJEKTUNTERLAGEN, wie

  • Energieausweis
  • Grundbuchauszug
  • Flurkarte
  • Grundriss
  • usw.

Diese Bestätigung ist für Sie kostenfrei und unverbindlich, jedoch notwendig für die Besichtigung. Sie regelt lediglich die Provision für den Fall, dass Sie das Objekt später kaufen.

Die von uns erhaltenen Objektinformationen stammen vom Verkäufer. Eine Haftung für die Richtigkeit und Vollständigkeit der Angaben übernehmen wir nicht, da es unseren Kunden obliegt, die Angaben auf Richtigkeit zu prüfen.

Kennen Sie den Marktwert Ihrer Immobilie? Wir ermitteln professionell, kostenfrei und unverbindlich.

Lage

Die malerische Stadt Fritzlar liegt im Herzen von Nordhessen und besticht durch ihre historische Altstadt, die von einer mittelalterlichen Stadtmauer umgeben ist. Die idyllische Lage in direkter Nähe zum Edersee machen Fritzlar zu einem beliebten Wohnort für Naturliebhaber und Erholungssuchende.

Die Altstadt von Fritzlar beeindruckt mit ihren gut erhaltenen Fachwerkhäusern, engen Gassen und historischen Plätzen. Der imposante Dom St. Peter, das Wahrzeichen der Stadt, thront über den Dächern und lädt zu Besichtigungen ein. Zahlreiche gemütliche Cafés, Restaurants und Geschäfte sorgen für eine lebendige Atmosphäre in der Altstadt.

Die Infrastruktur in Fritzlar ist ausgezeichnet. Einkaufsmöglichkeiten, Schulen, Kindergärten und Ärzte sind vorhanden und gut erreichbar. Auch kulturelle Einrichtungen laden zu interessanten Ausflügen ein.

Für Naturliebhaber bietet Fritzlar eine Vielzahl an Freizeitmöglichkeiten. Der nahegelegene Nationalpark Kellerwald-Edersee lädt zu ausgedehnten Wanderungen und Radtouren ein. Auch die Eder mit ihren zahlreichen Wassersportmöglichkeiten ist nur einen Katzensprung entfernt.
Die verkehrsgünstige Lage von Fritzlar ermöglicht eine gute Anbindung an die Autobahn A49 sowie an den öffentlichen Nahverkehr. Die nahegelegene Großstadt Kassel ist binnen 30 Autominuten schnell erreichbar und bieten weitere kulturelle und berufliche Möglichkeiten.

Insgesamt bietet Fritzlar eine hohe Lebensqualität in einer charmanten Umgebung mit historischem Flair und naturnaher Erholung - ein idealer Ort zum Leben, Arbeiten und Entspannen.

Fernbahnhof 1,41 km | Bus 210 m 

Die dargestellte Position der Immobilie ist nur eine ungefähre Angabe.

Direktanfrage

* Pflichtangaben
 SSL-verschlüsselt
Immobiliendaten-Import und Darstellung für WordPress: WP-ImmoMakler