0561 99 77 80 70

Charmantes Wohnhaus in Alleinlage zwischen Sontra & Eschwege mit großem Grundstück & Wohnhaus

36205 Sontra, Einfamilienhaus zum Kauf

Kontaktdaten

Stephan Adams, Adams & Heyder Immobilienmakler GmbH

Objektdaten

  • Objekt-ID
    250041
  • Objekttypen
    Einfamilienhaus, Haus
  • Adresse
    36205 Sontra
    Hessen
  • Etagen im Haus
    2
  • Wohnfläche ca.
    157 m²
  • Grund­stück ca.
    3.757 m²
  • Zimmer
    6
  • Balkone
    1
  • Küche
    Einbauküche
  • Heizungsart
    Zentralheizung
  • Wesentlicher Energieträger
    Öl
  • Baujahr
    1901
  • Letzte Modernisierung
    2019
  • Zustand
    gepflegt
  • Ausstattung
    Standard
  • Garagen­stellplätze
    3 Stellplätze
  • Verfügbar ab
    nach Absprache
  • Kaufpreis
    299.000 EUR

Ausstattung / Merkmale

  • ✓ Abstellraum
  • ✓ Außenstellplatz
  • ✓ Badewanne
  • ✓ Balkon
  • ✓ Dielenboden
  • ✓ Dusche
  • ✓ Einbauküche
  • ✓ Fliesenboden
  • ✓ Garage
  • ✓ Garten/Gartennutzung
  • ✓ Gäste-WC
  • ✓ Gastterrasse
  • ✓ Kamin
  • ✓ Keller
  • ✓ Parkettboden
  • ✓ Sauna
  • ✓ Tageslichtbad

Energieausweis

  • Energieausweistyp
    Bedarfs­ausweis
  • Ausstellungsdatum
    15.07.2024
  • Gültig bis
    15.07.2034
  • Gebäudeart
    Wohngebäude
  • Baujahr
    1901
  • Primärenergieträger
    Öl
  • Endenergie­bedarf
    337,00 kWh/(m²·a)
  • Energie­effizienz­klasse
    H
0 25 50 75 100 125 150 175 200 225 250+ H G F E D C B A A+ H G F E D C B A A+ Endenergiebedarf 337,00 kWh/(m²·a)

Objekt­beschreibung

Beschreibung

Willkommen in Ihrem neuen Zuhause in naturnaher Alleinlage, gelegen zwischen Eschwege & Sontra!
Dieses charmante, modernisierte Wohnhaus mit großzügigem Grundstück und vielfältigen Nutzungsmöglichkeiten bietet Ruhe, Komfort und ländliche Idylle auf höchstem Niveau.

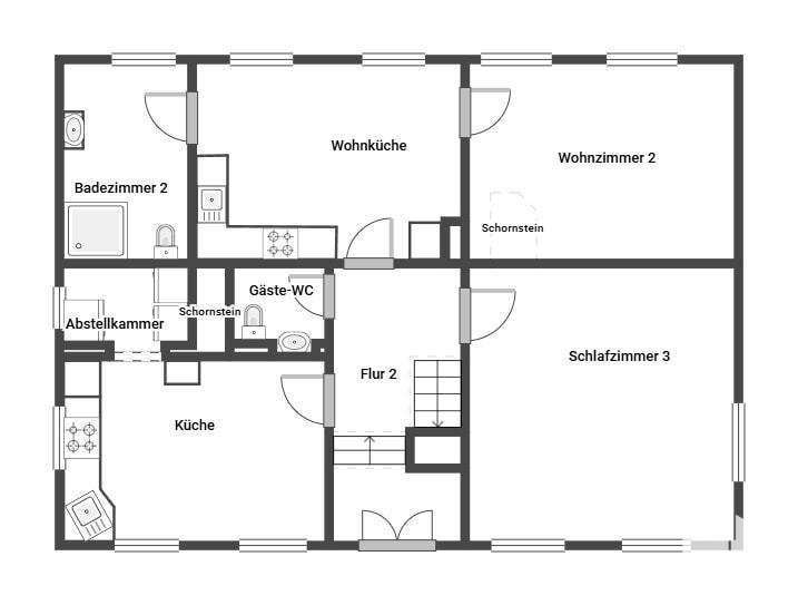
Das Wohnhaus wurde zeitgemäß modernisiert und verfügt über ca. 157 m² Wohnfläche, verteilt auf 6 helle und gut geschnittene Zimmer. Ob als Hauptwohnsitz, Wochenenddomizil oder als Rückzugsort für Naturliebhaber – dieses Anwesen vereint modernen Wohnkomfort mit historischem Charme.

Auf dem rund 3.757 m² großen Grundstück befindet sich neben dem Wohnhaus eine geräumige Scheune, die sich hervorragend als Garage, Werkstatt oder auch zur Tierhaltung eignet. Der weitläufige Garten bietet viele Gestaltungsmöglichkeiten und ist mit einer stilvollen Fasssauna ausgestattet – ideal zum Entspannen nach einem langen Tag in der Natur.

Ein weiterer Vorteil:
Die neue Autobahntrasse wird demnächst in der Nähe verlaufen. Dank der erhöhten Bauweise und der natürlichen Hanglage ist weder mit einer Sichtbeeinträchtigung noch mit einer nennenswerten Lärmbelastung zu rechnen.

Ausstattung

Hier die wichtigsten Fakten:
Wohnhaus mit ca. 157 m², zeitgemäß modernisiert:

  • neue 2-fach Isofenster in 2019
  • 3 zusätzliche Holzöfen im Haus (alle mit Zulassung)
  • 2 Bäder + Gäste-WC
  • Elektrik in 2012 erneuert inkl. PV-Anlage zur Selbstnutzung und mit Einspeisevergütung
  • 6 Zimmer, flexibel nutzbar als Schlaf-, Arbeits- oder Gästezimmer
  • Scheune mit vielseitiger Nutzungsmöglichkeit (Garage, Tierhaltung, Lager)
  • gemütliche Fasssauna im Garten
  • Großes, gepflegtes Grundstück mit 3.757 m² Fläche
  • Lage direkt im Wald mit guter Anbindung
  • Ölheizung hat laut Schornsteinfeger Bestandsschutz und muss nicht ausgetauscht werden
  • Neue Autobahn A44 im Bau – keine Sichtbeeinträchtigung und voraussichtlich geringe Geräuschbelastung

Sonstiges

Zusammengefasst finden Sie hier ein seltenes Angebot für Naturfreunde, Familien oder Selbstversorger: Ein modernisiertes, bezugsfertiges Einfamilienhaus mit großem Grundstück, Nebengebäuden und viel Potenzial – in absoluter Alleinlage mit guter Anbindung.

Die von uns erhaltenen Objektinformationen stammen vom Verkäufer. Eine Haftung für die Richtigkeit und Vollständigkeit der Angaben übernehmen wir nicht, da es unseren Kunden obliegt, die Angaben auf Richtigkeit zu prüfen.

BITTE BEACHTEN SIE, DASS BESICHTIGUNGEN & BESUCHE AN DER IMMOBILIE NUR MIT FESTEN TERMINEN MIT UNS ALS MAKLER ERLAUBT SIND.

Haben wir Ihr Interesse an diesem Haus geweckt?

Wir freuen uns, wenn Sie mit uns zeitnah Kontakt aufnehmen!

Bitte hinterlegen Sie dazu Ihre Kontaktdaten im Immobilienportal. Nach Zusendung einer Mail von uns bestätigen Sie den Zugang zum Webexposé und schalten alle relevanten Daten frei.
Die Bestätigung des Maklervertrags regelt lediglich die Akzeptanz der Provision in Höhe von 3,57 % wenn Sie später Käufer der Immobilie sein werden. Sollten Sie nicht kaufen, ist alles weitere natürlich für Sie kostenfrei und unverbindlich.

Wir werden mit Ihnen zur Absprache einer Besichtigung zeitnah Kontakt aufnehmen!

Ihr Team von Adams & Heyder Immobilienmakler GmbH

Lage

Das Ensemble befindet sich zwischen Sontra & Eschwege, eingebettet in die herrliche Mittelgebirgslandschaft Nordhessens.
Die Umgebung bietet ausgedehnte Wälder, Felder und eine ruhige Nachbarschaft – ideal für Menschen, die die Natur lieben und dennoch nicht auf eine gute Infrastruktur verzichten möchten.

Die Orte Sontra & Eschwege bieten alle Einrichtungen des täglichen Bedarfs, wie Schulen, Kindergärten, Ärzte & Lebensmittelgeschäfte und sind durch eine gute Verkehrsanbindung in ca. 5-10 Minuten erreichbar.

Durch den Ausbau der A44 ist Kassel bereits zeitlich viel näher herangerückt und wird zukünftig noch schneller erreichbar werden.

Direktanfrage

* Pflichtangaben
 SSL-verschlüsselt
Immobiliendaten-Import und Darstellung für WordPress: WP-ImmoMakler