0561 99 77 80 70

Liebhaberstück: Ehemalige Schule in Fritzlar-OT Cappel

34560 Fritzlar, Einfamilienhaus zum Kauf

Video

Virtueller Rundgang

Kontaktdaten

Stefan Heyder, Adams & Heyder Immobilienmakler GmbH

Objektdaten

  • Objekt-ID
    AH-187
  • Objekttypen
    Einfamilienhaus, Haus
  • Adresse
    34560 Fritzlar
    Hessen
  • Etagen im Haus
    2
  • Wohnfläche ca.
    242,78 m²
  • Grund­stück ca.
    694 m²
  • Zimmer
    8
  • Schlafzimmer
    6
  • Badezimmer
    2
  • Küche
    Einbauküche
  • Heizungsart
    Zentralheizung
  • Wesentlicher Energieträger
    Öl
  • Baujahr
    1842
  • Letzte Modernisierung
    2014
  • Zustand
    gepflegt
  • Ausstattung
    gehoben
  • Außen­stellplätze
    2
  • Verfügbar ab
    sofort
  • Käufer­provision
    3,57 % inkl. MwSt.
    3,57 % Käuferprovision inkl. MwSt., verdient und fällig mit Beurkundung des notariellen Kaufvertrages.
  • Kaufpreis
    300.000 EUR

Ausstattung / Merkmale

  • ✓ Abstellraum
  • ✓ Außenstellplatz
  • ✓ Badewanne
  • ✓ Denkmalgeschützt
  • ✓ Dielenboden
  • ✓ Dusche
  • ✓ Einbauküche
  • ✓ Fliesenboden
  • ✓ Garten/Gartennutzung
  • ✓ Kamin
  • ✓ Keller
  • ✓ Steinboden
  • ✓ Tageslichtbad

Energieausweis

  • Energieausweis
    nicht erforderlich

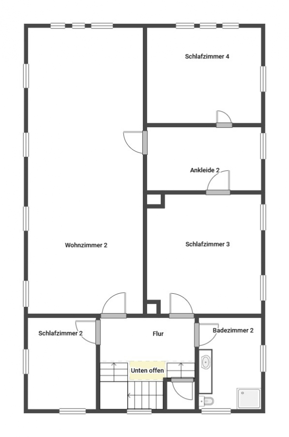
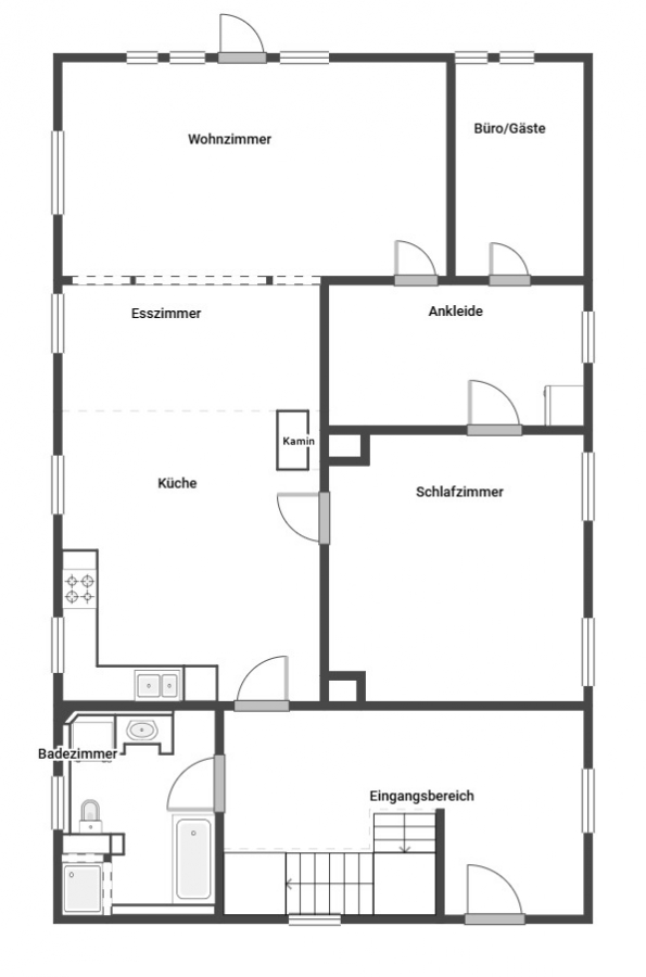
Objekt­beschreibung

Beschreibung

Entdecken Sie Ihr Traumhaus in Fritzlar-Cappel! Dieses charmante, unter Denkmalschutz stehende Biedermeier-Fachwerkhaus, ehemals eine Schule, bietet eine perfekte Kombination aus historischem Charme und modernem Komfort. Mit einer Wohnfläche von 242,78 m² auf 2 Etagen und einem großzügigen Grundstück von 694 m² bietet dieses Einfamilienhaus viel Platz für die ganze Familie.

Das Haus verfügt über 8 Zimmer, 6 geräumige Schlafzimmer und 2 Bäder. Die hochwertige Ausstattung und die Liebe zum Detail sind in jedem Raum spürbar. Die Böden sind mit einer Mischung aus Dielen, Fliesen und dem originalen Terrazzoboden gestaltet, der dem Haus seinen einzigartigen Charakter verleiht.

Die massive Einbauküche ist ebenso beeindruckend wie funktional und bietet ausreichend Platz für kulinarische Abenteuer. Der teilunterkellerte Bereich sowie das nicht ausgebaute Dachgeschoss bieten zusätzlichen Stauraum und Möglichkeiten zur individuellen Gestaltung.

Der schön angelegte Garten lädt zum Entspannen und Genießen der Natur ein. Hier finden Sie einen gepflasterten Sitzplatz, einen Nutzgarten und einen praktischen Holzunterstand. Mit 2 Außenstellplätzen ist genügend Platz für Ihre Fahrzeuge vorhanden. Die Fassade und die Fenster wurden zuletzt 2014 bzw. 2003 saniert, während die Ölheizung im Jahr 2002 modernisiert wurde. Eine Solar-Anlage ergänzt die energieeffiziente Ausstattung des Hauses.

Die aufwendige Sanierung mit natürlichen Materialien, die Innendämmung und der gemauerte Grundofen (Berliner Ofen) tragen zu einem angenehmen Wohnklima bei. Die offene Raumgestaltung in Verbindung mit unüblich hohen Decken sorgen für ein helles und freundliches Ambiente. Das originale Treppenhaus und die schönen Holzdielen sind liebevoll erhalten geblieben und zeugen von der reichen Geschichte des Hauses.

Dieses denkmalgeschützte Fachwerkhaus in Fritzlar ist nicht nur ein Zuhause, sondern ein Stück Geschichte, das mit modernem Komfort und nachhaltiger Bauweise kombiniert wurde. Vereinbaren Sie noch heute einen Besichtigungstermin und lassen Sie sich von diesem einzigartigen Objekt verzaubern.

Ausstattung

  • Denkmalgeschütztes Biedermeier-Fachwerkhaus (ehemalige Schule)
  • Aufwändig saniert mit natürlichen Materialien
  • Innendämmung, Berliner Ofen, offene Raumgestaltung
  • Fassade 2014, Fenster 2003, Ölheizung 2002, Solar genehmigt
  • Originaler Terrazzo-Boden, originales Treppenhaus und schöne Holzdielen
  • Zistrerne
  • Schön angelegter Garten

Sonstiges

Eine besondere Immobilie - Sie sind an näheren Informationen oder einem Besichtigungstermin interessiert?
Dann fordern Sie direkt das ausführliche Exposé über die Kontaktfunktion der Immobilienportale oder unsere Webseite https://www.adams-heyder.de an. Bitte geben Sie dabei eine gültige Telefonnummer an, denn Sie erhalten im nächsten Schritt einen Anruf, ob Sie einen Besichtigungstermin wahrnehmen möchten.

Mit separater Mail erhalten Sie den Zugang zum Webexposé. Sobald Sie den Maklervertrag bestätigt haben ("Jetzt bestätigen" anklicken), erhalten Sie direkt Zugriff auf die genaue Adresse sowie ALLE RELEVANTEN OBJEKTUNTERLAGEN, wie

  • Energieausweis
  • Grundbuchauszug
  • Flurkarte
  • Grundriss
  • usw.

Diese Bestätigung ist für Sie kostenfrei und unverbindlich, jedoch notwendig für die Besichtigung. Sie regelt lediglich die Provision für den Fall, dass Sie das Objekt später kaufen.

Die von uns erhaltenen Objektinformationen stammen vom Verkäufer. Eine Haftung für die Richtigkeit und Vollständigkeit der Angaben übernehmen wir nicht, da es unseren Kunden obliegt, die Angaben auf Richtigkeit zu prüfen.

Kennen Sie den Marktwert Ihrer Immobilie? Wir ermitteln professionell, kostenfrei und unverbindlich. Infos auf https://www.adams-heyder.de

Lage

Entdecken Sie Ihr neues Zuhause im charmanten Ortsteil Cappel von Fritzlar, einer idyllischen Wohngegend mit einer perfekten Mischung aus ländlichem Flair und städtischer Nähe.

Cappel liegt nur wenige Kilometer vom historischen Stadtzentrum von Fritzlar entfernt, wo Sie eine Vielzahl an Einkaufsmöglichkeiten, Restaurants und Cafés vorfinden. Die hervorragende Anbindung an das öffentliche Verkehrsnetz sowie die Nähe zur Autobahn A49 ermöglichen eine bequeme Pendelmöglichkeit in die umliegenden Städte wie Kassel und Marburg. Der öffentliche Nahverkehr ist gut ausgebaut, es fahren mehrmals täglich Busse.

In der unmittelbaren Nachbarschaft finden Sie viel Natur, die zu entspannenden Spaziergängen einlädt. Schulen, Kindergärten und medizinische Einrichtungen sind in Fritzlar ebenfalls leicht erreichbar, was Cappel zu einem idealen Ort für Familien macht.

Flughafen 7,08 km | Fernbahnhof 4,64 km | Autobahn 5,80 km | Bus 30 m 

Direktanfrage

* Pflichtangaben
 SSL-verschlüsselt
Immobiliendaten-Import und Darstellung für WordPress: WP-ImmoMakler