0561 99 77 80 70

Teilsaniertes Einfamilienhaus am Ortsrand

34225 Baunatal, Einfamilienhaus zum Kauf

Virtueller Rundgang

Kontaktdaten

Stefan Heyder, Adams & Heyder Immobilienmakler GmbH

Objektdaten

  • Objekt-ID
    AH-113
  • Objekttypen
    Einfamilienhaus, Haus
  • Adresse
    34225 Baunatal
    Hessen
  • Wohnfläche ca.
    157 m²
  • Balkon-/Terrassen­fläche ca.
    6,50 m²
  • Grund­stück ca.
    465 m²
  • Zimmer
    6
  • Schlafzimmer
    5
  • Badezimmer
    2
  • Balkone
    1
  • Küche
    Einbauküche
  • Heizungsart
    Zentralheizung
  • Wesentlicher Energieträger
    Gas
  • Baujahr
    1904
  • Letzte Modernisierung
    2025
  • Zustand
    teilsaniert
  • Ausstattung
    Standard
  • Außen­stellplatz
    1
  • Verfügbar ab
    sofort
  • Käufer­provision
    3,57 % inkl. MwSt.
    3,57 % Käuferprovision inkl. Mwst., verdient und fällig mit Beurkundung des notariellen Kaufvertrages.
  • Kaufpreis
    250.000 EUR

Ausstattung / Merkmale

  • ✓ Abstellraum
  • ✓ Außenstellplatz
  • ✓ Badewanne
  • ✓ Balkon
  • ✓ Dusche
  • ✓ Einbauküche
  • ✓ Fliesenboden
  • ✓ Garten/Gartennutzung
  • ✓ Keller
  • ✓ Laminatboden
  • ✓ Tageslichtbad

Energieausweis

  • Energieausweistyp
    Bedarfs­ausweis
  • Ausstellungsdatum
    15.08.2024
  • Gültig bis
    14.08.2035
  • Gebäudeart
    Wohngebäude
  • Baujahr
    1904
  • Primärenergieträger
    Gas
  • Endenergie­bedarf
    447,10 kWh/(m²·a)
  • Energie­effizienz­klasse
    H
0 25 50 75 100 125 150 175 200 225 250+ H G F E D C B A A+ H G F E D C B A A+ Endenergiebedarf 447,10 kWh/(m²·a)

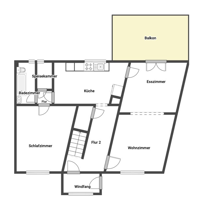
Objekt­beschreibung

Objektbeschreibung:
Entdecken Sie dieses charmante, teilsanierte Einfamilienhaus, das ideale Zuhause für Familien, die Ihr eigenes Traumhaus erschaffen wollen. Mit einer Wohnfläche von 157 m² bietet dieses Haus 6 Zimmer, darunter 5 geräumige Schlafzimmer und 2 moderne Badezimmer. Das großzügige Grundstück von 635 m² lädt zu entspannten Stunden im eigenen Garten ein.

Das Haus wurde zuletzt im Jahr 2019 sowie 2025 modernisiert und präsentiert sich in einem teilfertiggestelltem Zustand. Im Dachgeschoss können zwei weitere Zimmer ausgebaut werden (vorbereitet). Die Ausstattung ist praktisch und funktional, mit Fliesen und Laminat als Bodenbelag, die eine einfache Pflege und ein zeitloses Ambiente garantieren.

Zu den Highlights dieser Immobilie gehören:

  • 2000W Solaranlage / Balkonkraftwerk runterregelbar auf 800W
  • Ein praktischer Außenstellplatz für Ihr Auto
  • Ein geräumiger Keller sowie Anbau, die zusätzlichen Stauraum bieten
  • Eine Einbauküche, die sofort nutzbar ist
  • Gaszentralheizung aus 2019

Der Garten und die Balkonterrasse laden zu gemütlichen Grillabenden und entspannten Sonntagsfrühstücken ein. Hier können Sie die warmen Sommertage in vollen Zügen genießen.

Die Zentralheizung aus dem Jahr 2019 sorgt für eine effiziente und kostengünstige Wärmeversorgung. So profitieren Sie von der modernen Heiztechnik und niedrigeren Energiekosten.

Dieses Haus befindet sich in Baunatal-Großenritte am Ortsrand mit hervorragender Infrastruktur und grüner Umgebung. Hier genießen Sie die Vorzüge eines ruhigen Wohnorts mit guter Anbindung an die umliegenden Städte.

Verpassen Sie nicht die Gelegenheit, dieses einladende Zuhause zu Ihrem neuen Rückzugsort zu machen. Kontaktieren Sie uns noch heute für einen Besichtigungstermin!

Lage

Lagebeschreibung:

Diese Immobilie befindet sich im attraktiven Stadtteil Baunatal-Großenritte und bietet eine hervorragende Verkehrsanbindung für Pendler und Reisende. Nur einen kurzen Fußweg von 6 Minuten entfernt finden Sie die nächste Haltestelle des öffentlichen Personennahverkehrs (ÖPNV), was eine bequeme und schnelle Fortbewegung innerhalb der Stadt ermöglicht.

Die nächste Autobahn ist lediglich 5 Autominuten entfernt, ideal für diejenigen, die häufig längere Strecken zurücklegen. Der Bahnhof ist in nur 3 Minuten Fahrzeit erreichbar, was den Zugang zu regionalen und überregionalen Zugverbindungen erleichtert.

Für Flugreisende ist der nächste Flughafen in 25 Minuten Fahrzeit zu erreichen, was eine praktische Option für nationale und internationale Flüge darstellt. Die Kombination aus lokaler Ruhe und ausgezeichneter Verkehrsanbindung macht diese Lage zu einer erstklassigen Wahl für Ihr neues Zuhause.

Flughafen 24,23 km | Fernbahnhof 890 m | Autobahn 2,03 km | Bus 430 m 

Direktanfrage

* Pflichtangaben
 SSL-verschlüsselt
Immobiliendaten-Import und Darstellung für WordPress: WP-ImmoMakler